Le projet ARCHITECTURAL
Inscrit dans le TERRITOIRE
Le PDQ Concorde
Concorde figure depuis 2012 au plan directeur cantonal et au plan directeur de quartier de la Concorde (PDQ Concorde).
Ce dernier a été choisi comme nouveau projet-modèle de la politique des agglomérations menée par l’office fédéral du développement territorial (ARE) pour un développement territorial durable, du type écoquartier.
Le projet d’écoquartier se donne des objectifs clairs et vérifiables dans différents domaines : participer et vivre ensemble, mixité et diversité, gestion de l’énergie, mobilité, gestion de l’eau, nature et biodiversité, matériaux de construction, gestion des déchets.
Un concours au service de l’architecture
Comme prévus par le PDQ Concorde, Concorde espace culture a fait l’objet d’un concours d’architecture.
C’est le projet d’un collectif d’architectes de Madrid, du nom de CCJVV, qui a été retenu pour sa lisibilité, sa cohérence et sa légitimité.
Soucieux de contribuer à la qualité de l’environnement et afin de répondre aux exigences du modèle d’écoquartier, les bâtiments seront de haute performance énergétique.
Déjà un rayonnement international
Un CONCEPT architectural clair
Le programme fonctionnel se distribue en quatre volumes prismatiques situés parallèlement dans le périmètre de la parcelle.
Cette disposition formelle en différentes unités permet l’atténuation de l’échelle globale de l’ensemble qui s’installe de manière adéquate et harmonieuse dans le contexte urbain.
La position de la Voie Verte divise le site en deux zones différenciées, où se placent les constructions selon leur usage.
Le volume localisé au sud de la parcelle accueille le programme des logements pour étudiants, en relation avec le quartier résidentiel.
À leur tour, les trois autres bâtiments accueillent le programme du Centre Culturel, de l’hôtel et des espaces de restauration.
Les deux parties se connectent par une passerelle piétonne qui croise la Voie Verte au niveau +3,96m
Un équipement phare pour le quartier
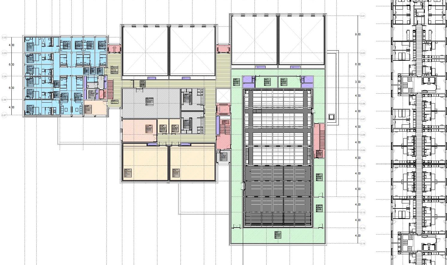
CONCORDE, niveau par niveau
Niveau 0



Niveau 1

Niveau 2



Niveau 3

Niveau 4



Niveau 5

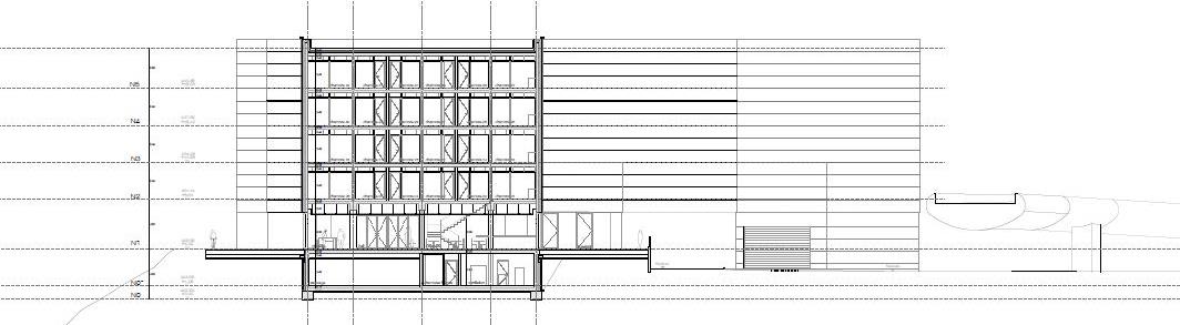
Coupe transversale Hôtel

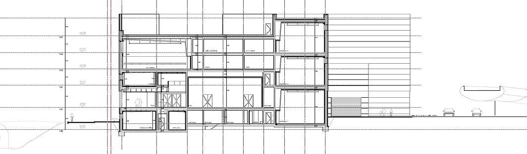
Coupe transversale Studios de danse

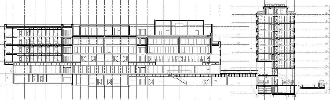
Coupe transversale Grande Salle

Coupe longitudinale Foyers

